Logo von Loos-Architektur Loos-Architektur
  • Projekte
  • Leistungen
  • Büro
  • Kontakt
  • Jobs

Architekturprojekt – Doppelhaus in Waldacker

Bild 1: Doppelhaus, rhein-main-gebiet

Idyllisches Doppelhaus in Waldacker - Goethestraße 42: Das perfekte Zuhause für Naturliebhaber

Dieses moderne Doppelhaus wurde auf einem Baugrundstück in zweiter Reihe errichtet. Es zeichnet sich durch einen äußerst geringen Energiebedarf aus und wurde unter Verwendung umweltfreundlicher und nachhaltiger Baustoffe gebaut.

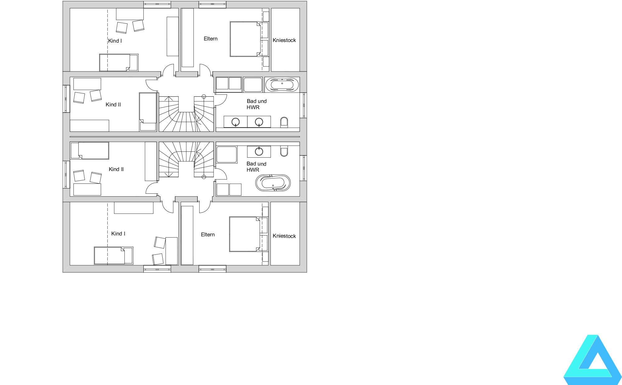
Das Haus erstreckt sich über eineinhalb Geschosse und verfügt über zwei große Gauben. Im Erdgeschoss befinden sich die gemeinschaftlichen Wohnbereiche, während sich im Obergeschoss die privaten Zimmer für zwei Familien befinden. Die Gärten sind nach Südwesten ausgerichtet.

Dieses idyllische Doppelhaus bietet seinen Bewohnern eine perfekte Kombination aus modernem Wohnkomfort und der Schönheit der umliegenden Natur. Die Verwendung ökologischer Baustoffe und die Bauweise mit geringem Energiebedarf machen es nicht nur umweltfreundlich, sondern sorgen auch für ein gesundes und nachhaltiges Zuhause.

Die Lage in zweiter Reihe gewährleistet Ruhe und Privatsphäre abseits der Hauptstraße. Die großen Gauben im Haus sorgen für eine helle und einladende Atmosphäre in den Räumen. Durch die Ausrichtung der Gärten nach Südwesten können die Bewohner die Sonne und den Blick auf die Natur den ganzen Tag über genießen.

Die umweltfreundlichen Eigenschaften und der geringe Energiebedarf sorgen für niedrige Betriebskosten und tragen gleichzeitig zum Schutz unserer Umwelt bei.

Ort Waldacker, Goethestraße
Jahr 2015 - 2016
Größe 256 m²
Typus Doppelhaus
Partner / Zusammenarbeit Statik – H. Krenn
LPH 1 - 8
Bild 2: Doppelhaus 2, Ökologisches Bauen
Bild 3: Doppelhaus 3, green building
Bild 4: Doppelhaus innen, architektur
Bild 5: Doppelhaus Grundriss, architekt
Bild 6: Doppelhaus Grundriss 2, Ökologisches Bauen

© 2024 Loos-Architektur · Impressum