Logo von Loos-Architektur Loos-Architektur
  • Projekte
  • Leistungen
  • Büro
  • Kontakt
  • Jobs

Architekturprojekt – Apartmenthaus in Darmstadt

Bild 1: Wohn-/Apartmenthaus in der Heinrichstraße, Ökologisches Bauen

Wohn-/Apartmenthaus in Darmstadt: Attraktive Wohnungen in der Heinrichstraße

Grüne Architektur und nachhaltige Bauweisen spielen eine immer wichtigere Rolle in unserer Gesellschaft. Ein beeindruckendes Beispiel dafür ist das Wohn-/Apartmenthaus in der Heinrichstraße in Darmstadt, das attraktive Wohnungen bietet und gleichzeitig ökologische Aspekte berücksichtigt.

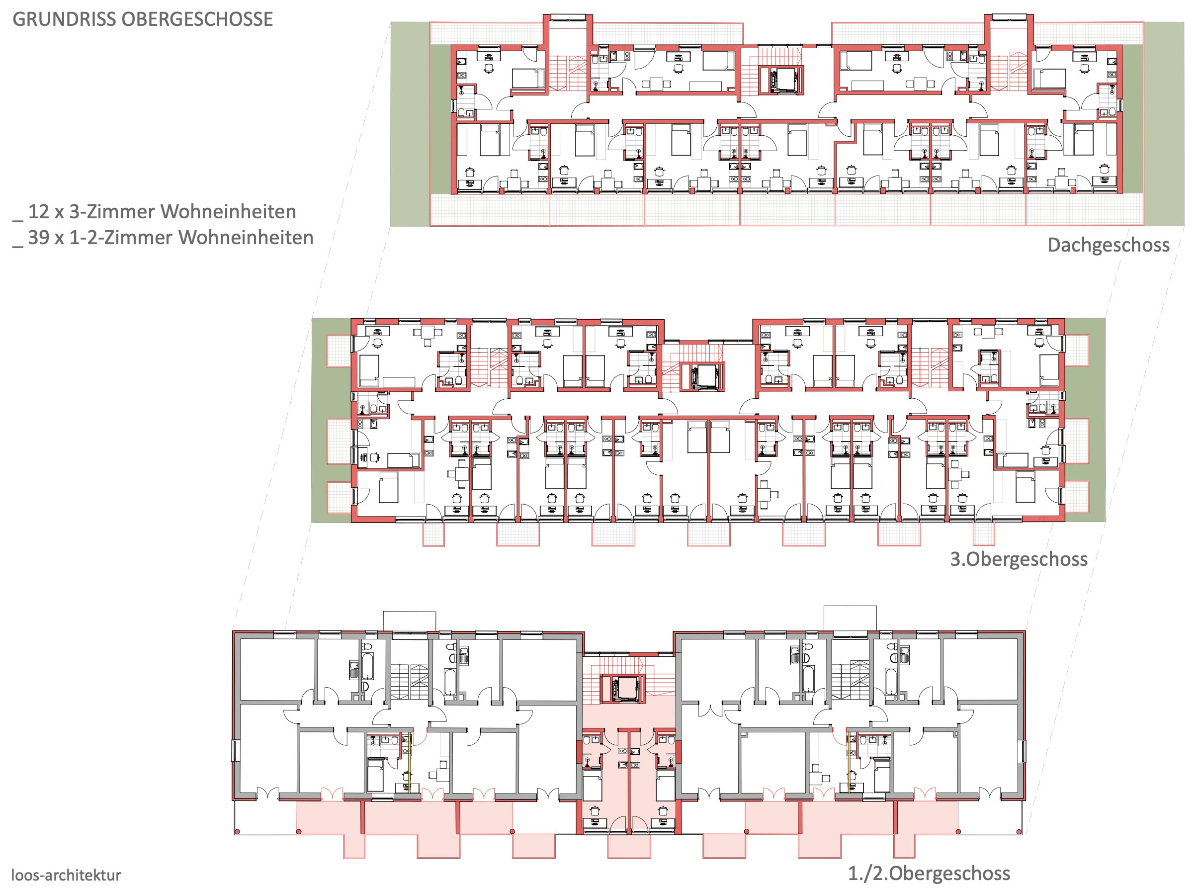
Die beiden Wohnhäuser, die sich zwischen der Uni-Lichtwiese und dem Zentrum von Darmstadt befinden und aus den 1950er Jahren stammen, sollen im Rahmen des Konzepts "Lücken schließen – Perspektiven öffnen" miteinander verbunden werden. Dafür wird ein Erschließungsbau zwischen den Gebäuden errichtet und die Gebäude um ein Vollgeschoss mit Dachgeschoss aufgestockt.

Besonderes Augenmerk wurde dabei auf die ökologische Nachhaltigkeit gelegt. Das Gebäude wird in Hybridbauweise errichtet, wobei eine Holzkonstruktion mit gemauerten Treppenhausschächten kombiniert wird. Auf den Dachflächen werden Solar- und Photovoltaikanlagen installiert, um die Wärme- und Stromversorgung des Gebäudes sowie die Mobilität mit Elektroautos sicherzustellen. Zudem wird Regenwasser aufgefangen und zur Gartenbewässerung genutzt.

Ein weiteres Highlight des Projekts ist die grüne Gestaltung. Sämtliche Dachflächen werden neben der solaren Nutzung auch begrünt, wodurch sie nicht nur ästhetisch ansprechend aussehen, sondern auch zur Verbesserung des Raumklimas und zur Förderung der Biodiversität beitragen.

Im Hof des Gebäudes ist eine Tiefgarage mit 32 Stellplätzen geplant. Das Besondere daran ist, dass das Dach der Tiefgarage intensiv begrünt wird und somit den Bewohnern als Garten und Begegnungsfläche dient. Zudem wird es im Hinterhaus überdachte, gemeinschaftlich genutzte Flächen für die Bewohner geben.

Die Wohnungen, sowohl die bereits vorhandenen als auch die neu errichteten Apartments, werden großteils über einen Südbalkon verfügen, der die rückwärtige Gebäudefassade gliedert.

Das Wohn-/Apartmenthaus in der Heinrichstraße ist nicht nur ein architektonisches Highlight, sondern auch ein Vorzeigeprojekt für grüne Architektur und nachhaltiges Bauen im Rhein-Main-Gebiet. Die Stadt Darmstadt, aber auch umliegende Städte wie Frankfurt, Bad Homburg und Mainz profitieren von solchen innovativen und energieeffizienten Gebäuden, die einen wichtigen Beitrag zur Energiewende leisten.

Wenn Sie auf der Suche nach einer attraktiven und zugleich nachhaltigen Wohnmöglichkeit sind, sollten Sie dieses Wohn-/Apartmenthaus in Darmstadt definitiv in Betracht ziehen. Hier vereinen sich ökologisches Bewusstsein, modernes Design und hoher Wohnkomfort zu einer einzigartigen Wohnlösung.

Ort Heinrichstraße, Darmstadt
Jahr 2017-2018
Größe ca. 2.000 m²
Typus Mehrfamilien / Apartmenthaus
LPH 1 - 4
Bild 2: Vorderansicht Wohn-/Apartmenthaus in der Heinrichstraße, green building
Bild 3: Zukünftiges Wohn-/Apartmenthaus in der Heinrichstraße, darmstadt
Bild 4: Balkonansicht Wohn-/Apartmenthaus in der Heinrichstraße, Ökologisches Bauen
Bild 5: Weitere Balkonansicht Wohn-/Apartmenthaus in der Heinrichstraße, architekt
Bild 6: Zeichnug von Balkonansicht Wohn-/Apartmenthaus in der Heinrichstraße
Bild 7: Ansicht Wohn-/Apartmenthaus in der Heinrichstraße am Abend, architektur
Bild 8: Altes Wohn-/Apartmenthaus in der Heinrichstraße, Ökologisches Bauen
Bild 9: Wohn-/Apartmenthaus in der Heinrichstraße
Bild 10: Neues Wohn-/Apartmenthaus in der Heinrichstraße, Ökologisch
Bild 11: Konzept - Bestandsdach entfernen - Wohn-/Apartmenthaus in der Heinrichstraße
Bild 12: Konzept - Lücke schließen und aufstocken - Wohn-/Apartmenthaus in der Heinrichstraße, Ökologisches Bauen
Bild 13: Konzept Fassade - Wohn-/Apartmenthaus in der Heinrichstraße, rhein-main-gebiet
Bild 14: Grundriss Obergeschosse Wohn-/Apartmenthaus in der Heinrichstraße, darmstadt
Bild 15: Höhenabwicklung Wohn-/Apartmenthaus in der Heinrichstraße, Ökologisches Bauen

© 2024 Loos-Architektur · Impressum