Logo von Loos-Architektur Loos-Architektur
  • Projekte
  • Leistungen
  • Büro
  • Kontakt
  • Jobs

Architekturprojekt – Stadthaus in Darmstadt

Bild 1: Elegantes, modernes und energieeffizientes Stadthaus in Darmstadt

Elegantes Stadthaus mit 10 exklusiven Wohneinheiten in der Sandstraße, Darmstadt

In der Innenstadt von Darmstadt befindet sich ein besonderes Wohngebäude, das als Stadthaus mit zehn Wohneinheiten konzipiert ist. Es besteht aus einem Vorderhaus mit acht Wohnungen und einem Hinterhaus mit zwei Wohnungen. Eine Tiefgarage befindet sich unter den Gebäuden und bietet den Bewohnern praktische Parkmöglichkeiten. Das Gebäude präsentiert sich mit einer Fassade, die den Namen der Straße und die Idee einer Sanddüne, welche aus einem Travertinsockel entsteht, aufgreift.

In der Innenstadt von Darmstadt befindet sich ein besonderes Wohngebäude, das als Stadthaus mit zehn Wohneinheiten konzipiert ist. Es besteht aus einem Vorderhaus mit acht Wohnungen und einem Hinterhaus mit zwei Wohnungen. Eine Tiefgarage befindet sich unter den Gebäuden und bietet den Bewohnern praktische Parkmöglichkeiten. Das Gebäude präsentiert sich mit einer Fassade, die den Namen der Straße und die Idee einer Sanddüne, welche aus einem Travertinsockel entsteht, aufgreift.

In der Innenstadt von Darmstadt befindet sich ein besonderes Wohngebäude, das als Stadthaus mit zehn Wohneinheiten konzipiert ist. Es besteht aus einem Vorderhaus mit acht Wohnungen und einem Hinterhaus mit zwei Wohnungen. Eine Tiefgarage befindet sich unter den Gebäuden und bietet den Bewohnern praktische Parkmöglichkeiten. Das Gebäude präsentiert sich mit einer Fassade, die den Namen der Straße und die Idee einer Sanddüne, welche aus einem Travertinsockel entsteht, aufgreift.

Ort Darmstadt, Sandstraße
Jahr 2014 - 2015
Größe 920 m²
Typus Stadthaus mit 10 Wohneinheiten
Partner / Zusammenarbeit Lichthaus GmbH
BAT Architekten
In freier Mitarbeit für Lichthaus GmbH
LPH 1 - 4, inkl. künstlerische Bauleitung
Bild 2: Innenansicht Stadthaus in Darmstadt
Bild 3: Außenansicht Stadthaus in Darmstadt>
Bild 4: Außenansicht hinten - grüne Terasse und Garten des Stadhauses in Darmstadt
Bild 5: Außenansicht vorne - grüne Terasse und Garten des Stadhauses in Darmstadt>
Bild 6: Vorhof des Stadthauses in Darmstadt
Bild 7: Terasse Stadthaus in Darmstadt
Bild 8: Straßenansicht von der rechten Seite auf das nachhaltiges Stadthaus in Darmstadt
Bild 9:Straßenansicht von der linken Seite auf das nachhaltiges Stadthaus in Darmstadt
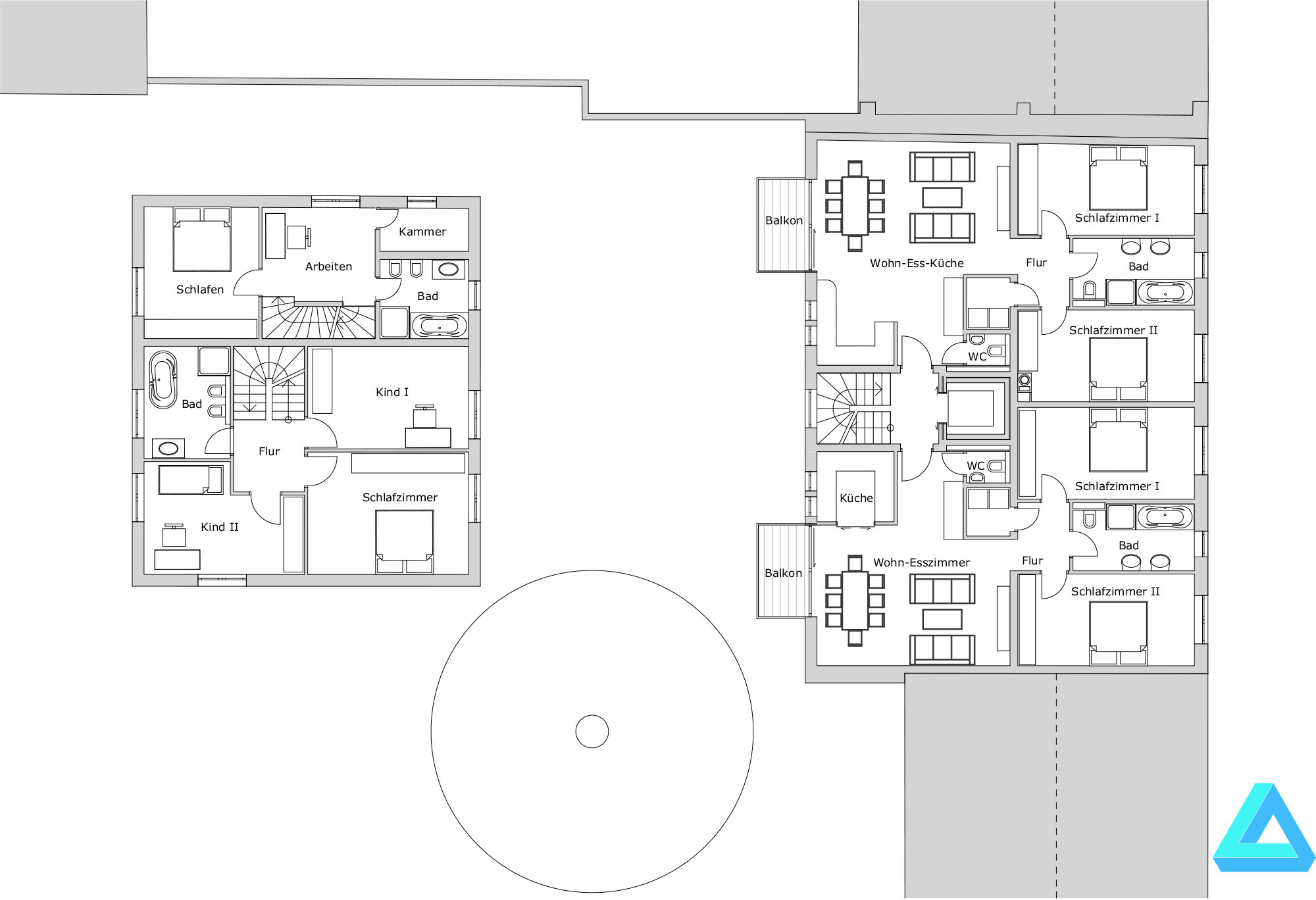
Bild 10: Grundriss modernes, nachhaltiges und grünes Stadthaus in Darmstadt
Bild 11: Wetieres Grundriss modernes, nachhaltiges und grünes Stadthaus in Darmstadt

© 2024 Loos-Architektur · Impressum