Logo von Loos-Architektur Loos-Architektur
  • Projekte
  • Leistungen
  • Büro
  • Kontakt
  • Jobs

Architekturprojekt – Mehrfamilienhaus in Griesheim

Bild 1: Mehrfamilienhaus Griesheim

Modernes Mehrfamilienhaus mit 8 Wohneinheiten in Griesheim, Wilhelm-Leuschner-Str. 213: Komfortables Wohnen in zentraler Lage

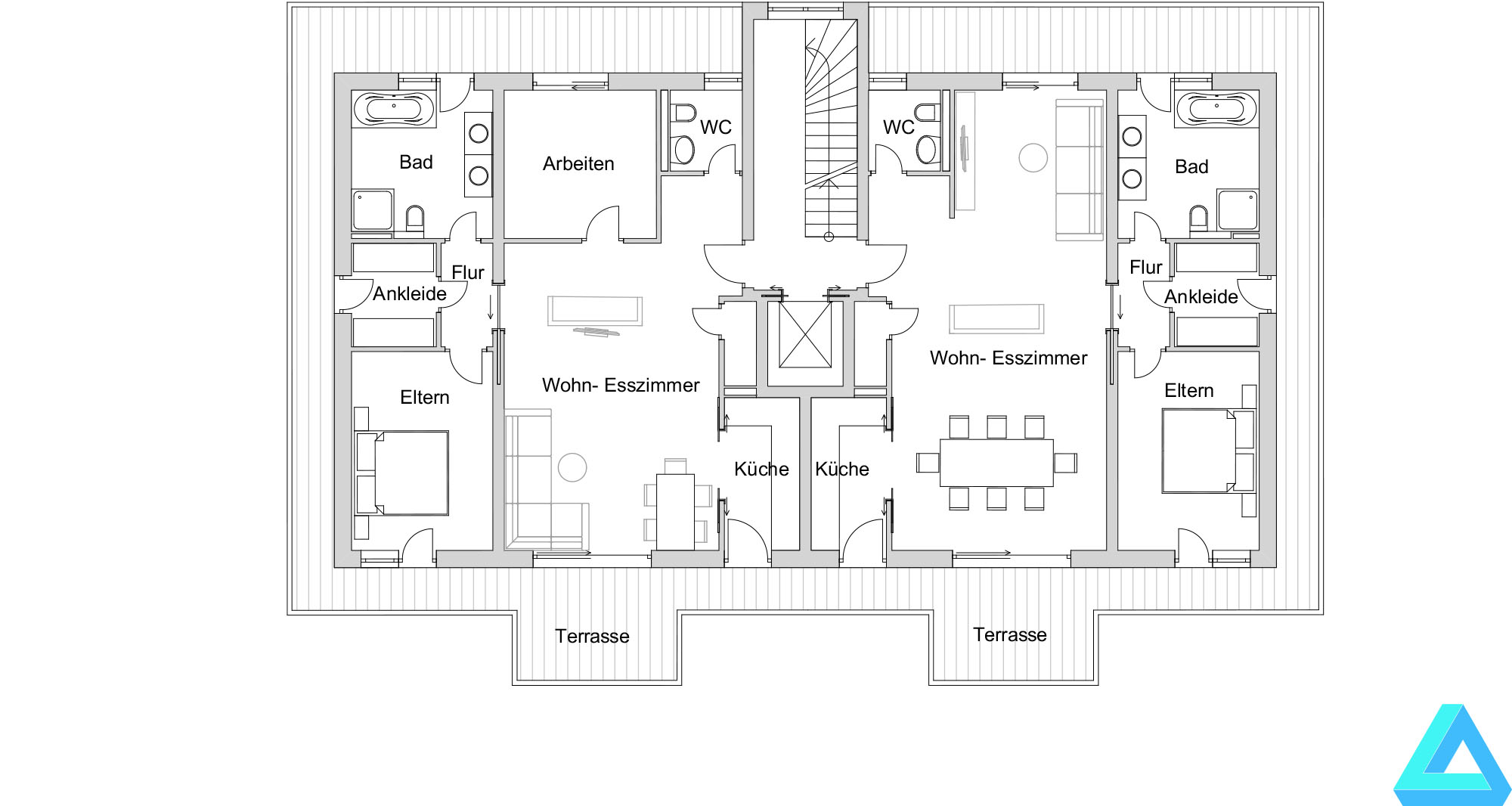
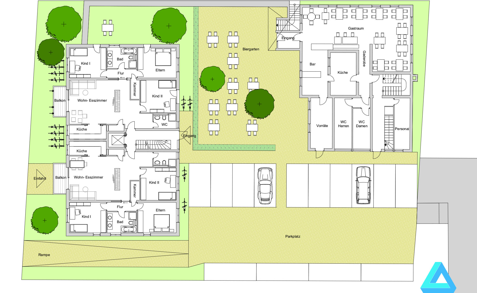
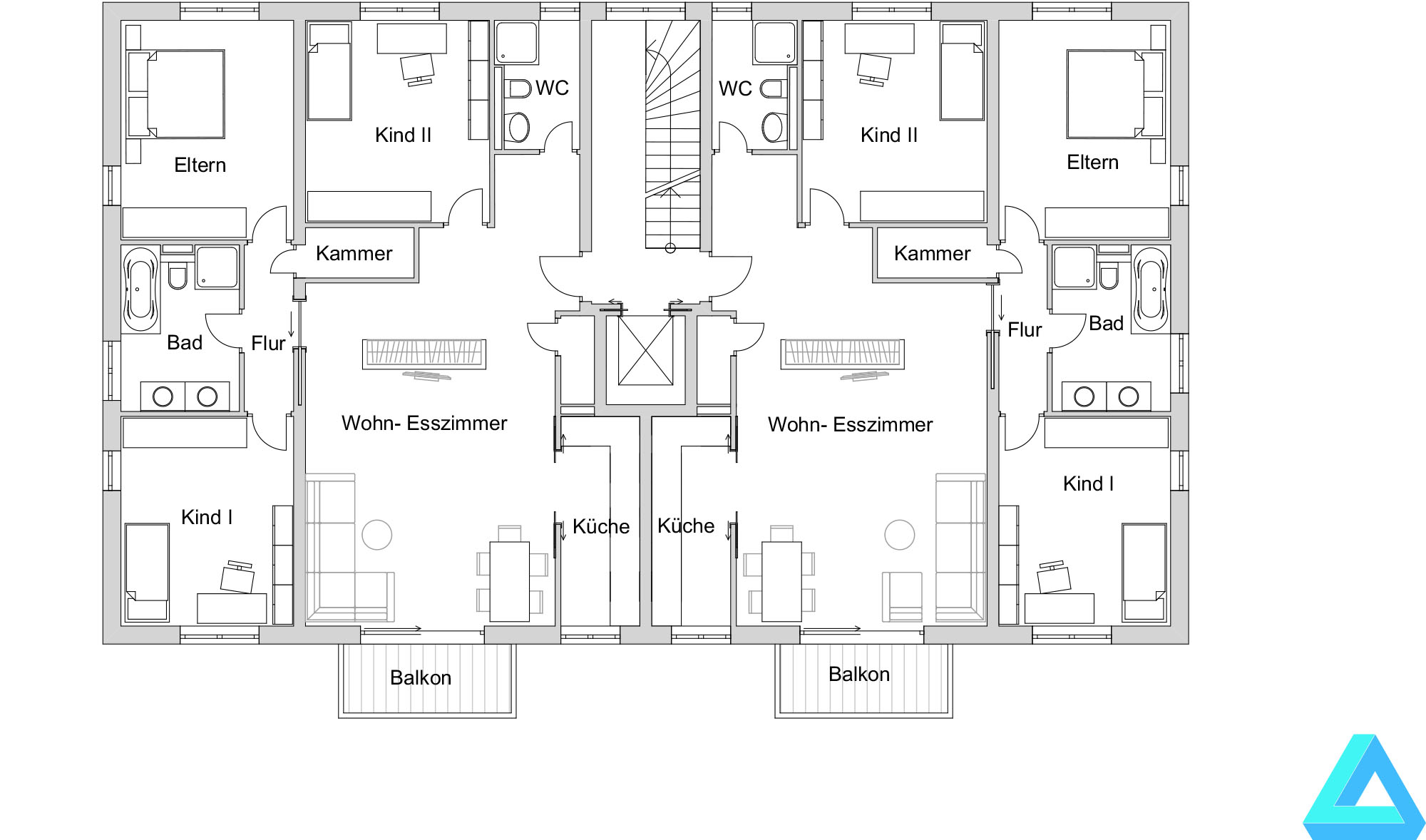
Im Norden von Griesheim befindet sich eine bemerkenswerte Gebäudegruppe, die ein denkmalgeschütztes ehemaliges Brauereigebäude mit seinen Gewölbekellern umfasst. Vor dem Baubeginn wurden die Schuppen und Lagergebäude auf dem Grundstücksteil des Neubaus abgerissen. Der Neubau besteht aus fünf Etagen, wobei der Innenhof des Gebäudes etwa drei Meter über dem Straßenniveau liegt. Das Erdgeschoss dient als Garage und Keller, während sich die Wohnetagen oberhalb des Hofs erstrecken. Insgesamt gibt es acht Wohneinheiten auf vier Etagen. Die Wohnungen sind nach Südwesten ausgerichtet und verfügen über Balkone und Wohnräume.

Während des Neubaus wurde im Untergeschoss des denkmalgeschützten Gebäudes eine Weinbar eingerichtet und umfangreiche Sanierungsmaßnahmen durchgeführt. Dabei wurde besonderer Wert auf nachhaltige Architektur und Denkmalpflege gelegt.

Dieses moderne Mehrfamilienhaus in Griesheim bietet Ihnen nicht nur bequemes Wohnen, sondern auch eine zentrale Lage. Die Wohnungen sind mit Balkonen ausgestattet, die Südwestausrichtung sorgt für eine optimale Belichtung der Räume und schafft eine angenehme Wohnatmosphäre.

Im Zuge des Neubaus wurde im Untergeschoss des denkmalgeschützten Gebäudes eine Weinbar eingerichtet und umfangreiche Sanierungsmaßnahmen durchgeführt.

Ort Griesheim, Wilhelm-Leuschner-Straße
Jahr 2014
Größe 690 m²
Typus Mehrfamilienhaus mit 8 Wohneinheiten
Partner / Zusammenarbeit Ingenieurconsult Bergemann
LPH 1 - 7
Bild 2: Mehrfamilienhaus 2
Bild 3: Terasse Weinbar
Bild 4: Weinbar Innenansicht
Bild 5: Grundriss Mehrfamilienhaus 1
Bild 6: Grundriss Mehrfamilienhaus 2
Bild 7: Grundriss Mehrfamilienhaus 3

© 2024 Loos-Architektur · Impressum