Logo von Loos-Architektur Loos-Architektur
  • Projekte
  • Leistungen
  • Büro
  • Kontakt
  • Jobs

Architekturprojekt – Wohn- und Geschäftshaus in Griesheim

Bild 1: Wohn- und Geschäftshaus in der Zusestraße 11, Griesheim

Zusestraße 11 in Griesheim: Das ideale Wohn- und Geschäftshaus für moderne Ansprüche

Das Stadthaus in der Moritzstraße 68 ist nicht nur ein Paradebeispiel für ökologisches Bauen, sondern auch ein Zeugnis der Denkmalpflege. Die sorgfältige Sanierung unter Berücksichtigung der historischen Substanz trägt zur Erhaltung des kulturellen Erbes bei und ermöglicht es gleichzeitig, ein modernes und komfortables Wohnumfeld zu schaffen.

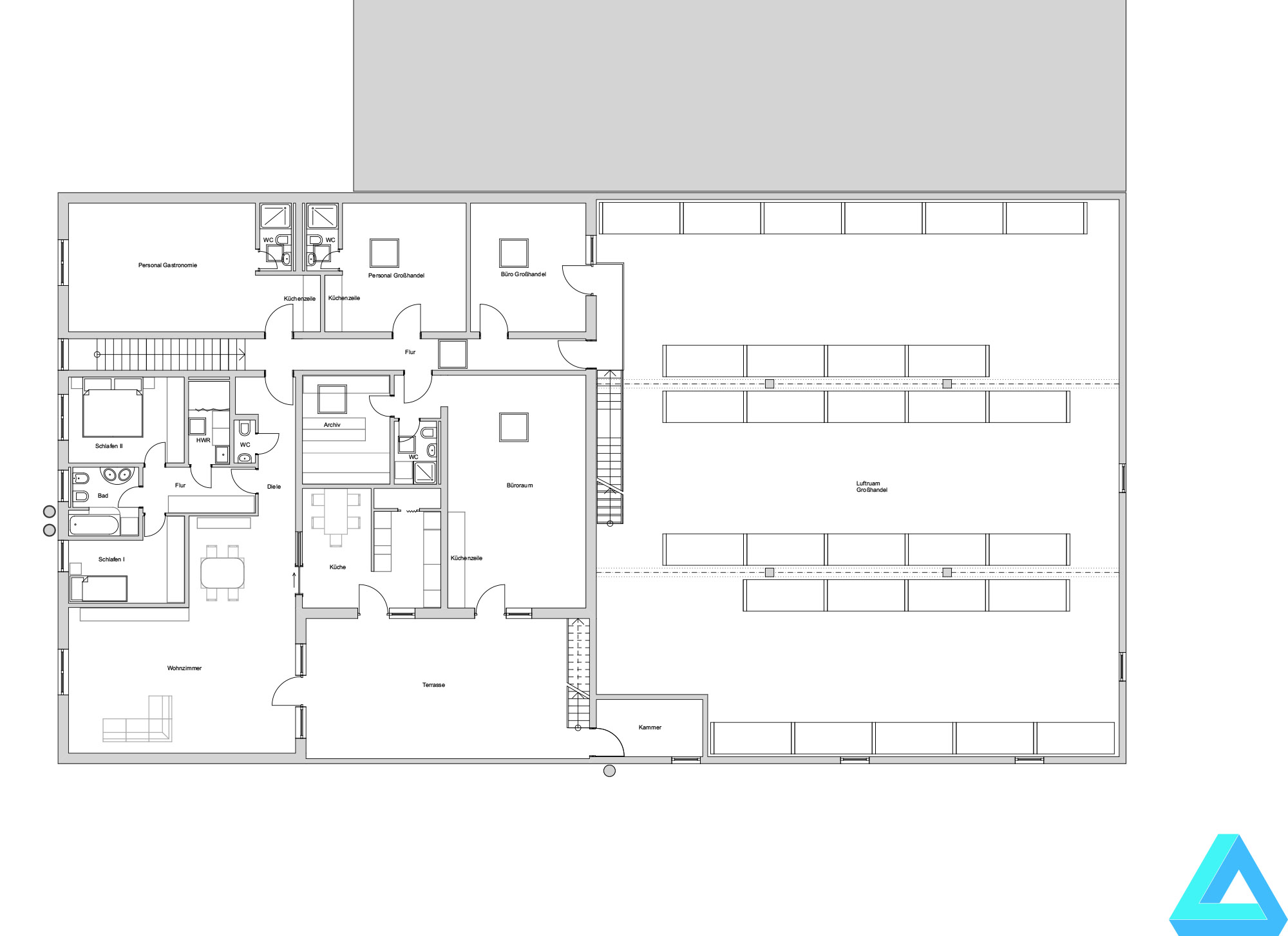
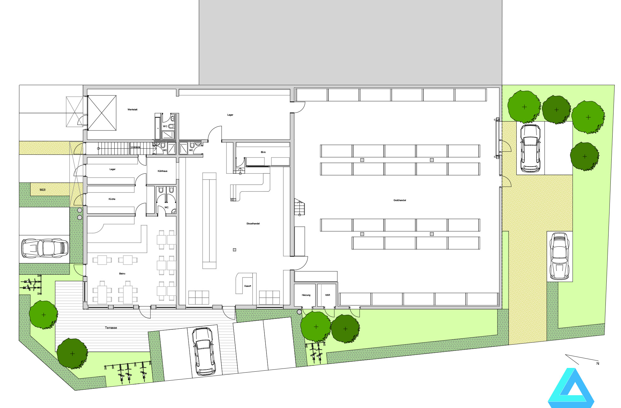
Das zweigeschossige Gebäude ist optimal strukturiert. Im Erdgeschoss befinden sich der Einzelhandel und die Gastronomie, während sich im Obergeschoss die Eigentümerwohnung und die Büros befinden. Besonders markant ist die architektonische Gestaltung des Gebäudes: Es wurde ein Quader aus einem Kubus herausgeschnitten, um ein interessantes und einzigartiges Erscheinungsbild zu schaffen.

Ort Griesheim, Zusestraße
Jahr 2014 - 2017
Größe 935 m²
Typus Wohn- und Geschäftshaus
Partner / Zusammenarbeit Ingenieurconsult Bergemann
LPH 1 - 8
Bild 2: Innenansicht Geschäftshaus in der Zusestraße 11, Griesheim
Bild 3: Frontansicht Wohn- und Geschäftshaus in der Zusestraße 11, Griesheim
Bild 4: Außenansicht Wohn- und Geschäftshaus in der Zusestraße 11, Griesheim
Bild 5: Weitere Außenansicht Wohn- und Geschäftshaus in der Zusestraße 11, Griesheim
Bild 6: Andere Perspektive der Außenansicht Wohn- und Geschäftshaus in der Zusestraße 11, Griesheim
Bild 7: Seitliche Außenansicht Wohn- und Geschäftshaus in der Zusestraße 11, Griesheim
Bild 8: Eingang Wohn- und Geschäftshaus in der Zusestraße 11, Griesheim
Bild 9: Innenansicht Wohn- und Geschäftshaus in der Zusestraße 11, Griesheim während Bau
Bild 10: Weitere Innenansicht Wohn- und Geschäftshaus in der Zusestraße 11, Griesheim während Bau
Bild 11: Innenansicht Wohn- und Geschäftshaus in der Zusestraße 11, Griesheim während Bau mit Blick nach draußen
Bild 12: Grundriss Fläche Wohn- und Geschäftshaus in der Zusestraße 11, Griesheim während Bau
Bild 13: Weiterer Grundriss Wohn- und Geschäftshaus in der Zusestraße 11, Griesheim während Bau

© 2024 Loos-Architektur · Impressum